Projetos completos de arquitetura e engenharia para você construir com segurança, economizar na obra e evitar erros.

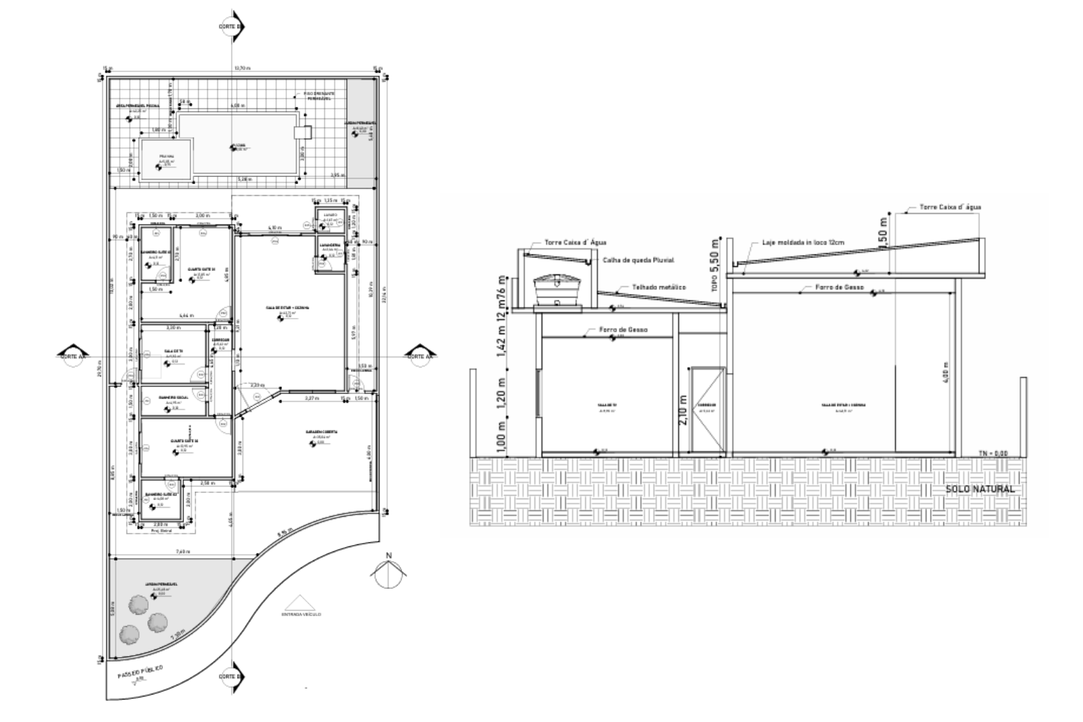
Projeto completo de casa com 200m², desenvolvido para oferecer máximo conforto, funcionalidade e um excelente aproveitamento de cada espaço. Ideal para quem busca uma residência moderna e bem planejada, o projeto contempla ambientes integrados, iluminação natural valorizada e circulação fluida, proporcionando mais qualidade de vida no dia a dia.
A proposta inclui uma distribuição inteligente dos cômodos, com áreas sociais amplas e aconchegantes, perfeitas para receber familiares e amigos, além de áreas íntimas que garantem privacidade e tranquilidade. O projeto também considera aspectos como ventilação cruzada, aproveitamento de luz natural e soluções que contribuem para economia e sustentabilidade.
Pensado nos mínimos detalhes, o projeto une estética contemporânea com praticidade, oferecendo um equilíbrio perfeito entre beleza, conforto e eficiência. É a escolha ideal para quem deseja construir um lar moderno, funcional e adaptado às necessidades da vida atual.

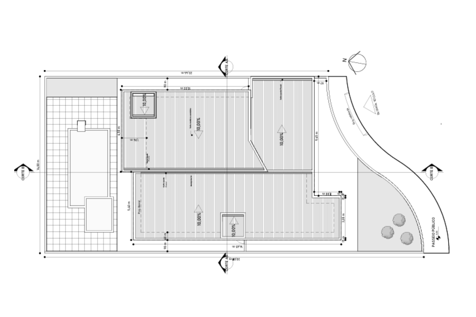
Projeto completo de casa com 200m², desenvolvido para oferecer conforto, praticidade e excelente aproveitamento de espaço. Ideal para quem busca uma residência moderna, com ambientes bem distribuídos e soluções inteligentes para o dia a dia.

Projeto completo de casa com 200m², desenvolvido para oferecer conforto, praticidade e excelente aproveitamento de espaço. Ideal para quem busca uma residência moderna, com ambientes bem distribuídos e soluções inteligentes para o dia a dia.

Projeto completo de casa com 200m², desenvolvido para oferecer conforto, praticidade e excelente aproveitamento de espaço. Ideal para quem busca uma residência moderna, com ambientes bem distribuídos e soluções inteligentes para o dia a dia.



Ideal para quem quer começar a construir agora, com praticidade e economia.

Personalize um projeto já existente e tenha o melhor custo-benefício para você.

Criamos um projeto exclusivo, pensado do zero para refletir sua personalidade.
Na Meu Projeto 3D, você encontra projetos completos pensados para garantir segurança, economia e praticidade na sua obra.




Os itens abaixo pertencem ao Projeto Arquitetônico e estão inclusos em todos os projetos.

Esse item é essencial para a visualização mais realista de como ficará a fachada frontal.

É a planta pronta para construir. Nela estão definidas todas as dimensões, especificações de acabamentos.

Detalhamento da cobertura da edificação, incluindo caimentos, telhados e elementos técnicos

Representação ilustrada e decorada dos ambientes, proporcionando uma visão clara.

Desenho técnico que orienta a execução das fundações, garantindo locação correta dos elementos estruturais.

Relação completa das esquadrias e portas do projeto, com dimensões e especificações, assegurando padronização e precisão
Com certeza! Nossos projetos são totalmente adaptáveis ao seu terreno, considerando dimensões, normas técnicas e suas necessidades. Também oferecemos serviços de personalização para entregar um resultado sob medida.
Sim. Os projetos são desenvolvidos seguindo padrões técnicos e podem ser utilizados para aprovação. Além disso, caso a prefeitura ou condomínio exija alguma adequação específica, oferecemos suporte para realizar os ajustes necessários, garantindo mais tranquilidade para você.
Você recebe um projeto completo, com planta baixa, cortes, fachadas e todos os detalhes necessários para execução da obra. Os arquivos são entregues em formato digital, prontos para uso. Também oferecemos serviços adicionais como projetos complementares e orçamento da obra, caso deseje uma solução ainda mais completa.
Sim! Você pode adaptar o projeto conforme suas necessidades. Oferecemos o serviço de modificação e personalização do projeto, ajustando layout, medidas e outros detalhes importantes. Tudo isso com preços acessíveis, garantindo que o projeto fique do jeito que você precisa, sem pesar no seu orçamento.
Garantimos uma compra 100% segura. Trabalhamos com plataformas confiáveis, como o Mercado Pago, e utilizamos tecnologia de proteção de dados para assegurar a privacidade e segurança das suas informações em todas as etapas.

Escritório online de projetos de arquitetura e engenharia, oferecendo soluções completas e práticas para quem deseja construir com segurança e economia.

